樓層:-2至14層
總高:60米;
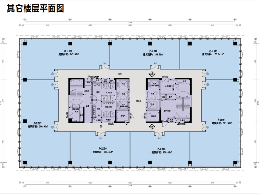
建筑面積:19963平米;
單層面積:1413平米;
層高:1層5.4米,其它樓層4.2米;
垂直電梯:6部;
其它配備:中央空調(帶新風系統)
裝修:精裝交付
項目亮點:綠色二星建筑、中央空調、新風系統、
智慧運維系統、全時段安防系統、屋頂光伏組件、光電系統、節省能耗
車位:150臺,并配備有新能源車位招商范圍:未來建筑數字產業園
交通:10分鐘可達蘇州高鐵北站、蘇州高速收費站,項目1.5小時經濟圈內有上海虹橋、上海浦東,蘇南碩放機場:
項目緊鄰地鐵7號線蠡塘河路站,將于2024年開通運營;
交通出行極為便捷,南靠蠡塘河水岸景觀帶,自然辦公環境優越。







